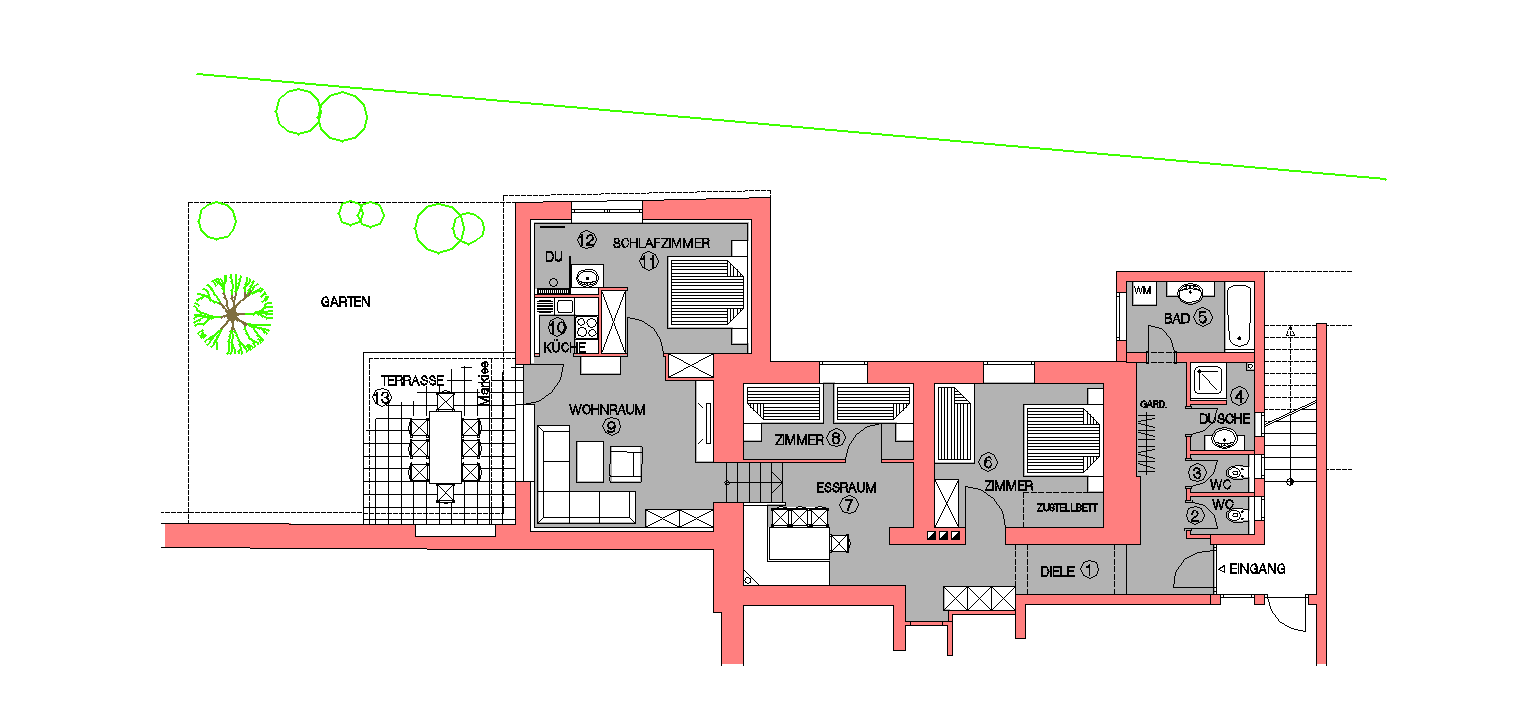
Plan
zu den Details und der Beschreibung...hier.....
Top 1 Top 2 Top 3 Top 4 Top 5 Top 6 Top 7 Top 8